利菲爾特生活垃圾處理設備優化提升的低投入改造方案
生活垃圾處理設備的重要部位為壓縮設備鋼結構支撐系統、壓實系統、泊位溜槽系統、前端除臭噴淋系統、末端除臭收集系統等。由于生活垃圾處理設備長期高負荷運轉,腐蝕老化嚴重,目前實際處理能力僅為設計規模的80%。站內除臭噴淋設備老化、臭氣收集管道破損,除臭效果不佳,導致站內出現了惡臭現象,對周邊環境及居民生活的舒適度產生了不良的影響。因此,需技術改造站內生活垃圾處理設備,提高垃圾轉運效率,滿足城市生活垃圾處理的環境要求,緩解日趨明顯的“鄰避效應”,提高城市垃圾轉運的整體水平。
1生活垃圾處理設備改造分析
1、壓實系統
壓實系統由動力平臺、壓實錘體、導向基座、行走導軌組成,壓實器系統依附行走導軌在卸料泊位上方水平移動。
動力平臺:動力平臺位于行走導向基座結構之上,依托液壓系統提供壓錘下壓功能,是整個生活垃圾處理設備的核心部件,運行水平直接影響轉運效率。動力平臺采用全新結構設計:①主電機由原來的普通電機升級為22kW低噪聲高效變頻電機,減少啟動噪聲,緩解電機沖擊,降低能耗,延長電機使用壽命。②壓實器油缸及液壓閥組,采用德國博士力士樂油缸及配套3組疊加閥及PLC控制模塊精確控制系統壓力、流量,最大承受的系統壓力逸300kN,額定工作壓力逸20MPa,上、下壓縮速度為200~300mm/s,油缸壓頭有效行程逸3850mm,該系統壓力更穩定,使用壽命更長。③液壓泵由原來的齒輪泵升級為柱塞泵,結構更優化,受壓強度更高,更容易調節系統壓力。④重新設計壓實系統的定位、限位,以及壓實器水平運行與壓實垃圾時互鎖功能,確保安全性。⑤壓實器系統無線控制功能有遠程無線遙控及手動應急現場操作2種控制方式,且壓實器在移動過程中配備聲光報警裝置。
壓實錘體:壓實錘體外殼翻新后重復利用。壓實錘體及配套設備均進行除銹防腐蝕處理,噴涂兩道各50滋m厚度環氧防銹底漆后,刷防火涂料及面漆,所有設備涂料總膜厚(含防火涂料厚)均不小于125滋m。除銹等級均達到《涂裝前鋼材表面銹蝕等級和除銹等級》(GB8923—1988)中的Sa2.5標準,耐火等級為二級。
導向基座:包含驅動輪總成、主框架總成、從動輪總成,外形尺寸3110mm伊1955mm。主動輪和從動輪材質采用45號鋼,其余鋼部件材質為Q345鋼材,增加導向基座的整體剛性及穩定性。主動輪采用電機驅動,提供前后移動動力。行走導軌:選用全新的高強度耐磨工型鋼作為導軌材料,抗拉強度470~630MPa,屈服強度大于345MPa,確保軌道在高強度使用中不發生拉伸形變。
2、泊位溜槽系統
原站內現狀的6個卸料溜槽變形嚴重,已無法使用,現全部更新,并重新優化機構,更換為液壓驅動卸料溜槽。①現狀鏈條拖拉式卸料溜槽及30個配套電機全部拆除,新購3個液壓泵站(共6個壓縮泊位,每個液壓泵站供應兩個卸料泊位的),溜槽起降與收集箱體開啟、關閉均由液壓泵站實現。②卸料溜槽結構采用BS700MC合金高強鋼,屈服強度逸620MPa,溜槽主體壁厚逸4mm,提供足夠的剛度,提升過程不產生扭動,壓頭下壓過程和垃圾卸料沖擊不發生塑性變形。③卸料槽應與卸料擋坎匹配,卸料擋坎應固定牢固,安裝高度適宜,能夠適應多種類型的收集車輛卸料,避免轉運車打開卸料倉門時與溜槽發生撞擊,表面平順便于清掃散落的垃圾。④卸料溜槽上采用高分子耐磨防腐工藝材料,材料巴氏硬度達到61,耐磨性測試(cs10,1000g,1000r)0.02g/c㎡,可延長溜槽使用壽命。同時,有助于垃圾順利滑入垃圾轉運箱、易清洗、免維護。⑤卸料溜槽與改造后的鋼結構支撐平臺緊密結合,保證垃圾不會散落到一樓轉運作業區,避免垃圾二次泄漏。
3、壓縮設備鋼結構支撐系統
重新規劃壓縮作業區域,將壓縮區域同其他轉運區域隔離,保證壓縮作業區域的密閉性,為負壓抽氣系統提供密閉前提條件。①鋼結構支撐系統壓實器行走軌道梁和壓實器行走軌道安裝鋼柱更換為全新結構設備。采用高強度耐磨工字鋼材質,使用壽命不低于10年。其余的鋼架結構保持原樣,在進行表面除銹防腐蝕翻新后(防銹處理采用壓實錘體相同工藝)重新利用,糾正了鋼架的偏移問題。②在泊位頂部、一樓、二樓轉運泊位兩側設置隔板隔斷,與卸料大廳、轉運大廳的快速卷簾門系統以及現代建筑的墻體結構形成一個密閉空間。
除泊位間采用PVC材質隔斷簾布,其余采用隔板隔斷,隔板框架材質為Q235,做防腐處理。③在轉運大廳及卸料大廳泊位處新增快速卷簾門系統,包括地磁感應線圈、卷簾門、PLC控制器。車輛進入卸料大廳指定泊位卸料時,根據地感線圈信號自動打開快速卷簾門,車輛卸料完畢駛離后,快速卷簾門關閉,確保卸料泊位臭氣不外溢??焖倬砗熼T應和壓實系統實現控制聯動與互鎖功能。改造后鋼結構作業區域封閉隔斷如下圖所示。

生活垃圾處理設備改造后鋼結構作業區域封閉隔斷圖
4、前端除臭噴淋系統
全套噴淋系統更新,充分滿足站內空間除塵除臭的工作需求。轉運站的卸料大廳(2路)、轉運大廳(2路)、快速卷簾門(1路)、每個壓縮泊位(6路)共布置11路噴淋管道,每隔1.5m的間距設置一個防滴漏精細霧化銅質噴嘴。每個泊位內部溜槽上方布置2個噴嘴,噴嘴連接降塵霧炮,除臭劑經降塵霧炮推送至卸料溜槽上空并均勻地噴灑,較小的液滴表面形成極大的表面積,易于吸附空氣中的粉塵粒子,起到降塵的作用。系統配套PLC控制器,令除臭劑按照設定的時間和噴灑量進行有效除臭。
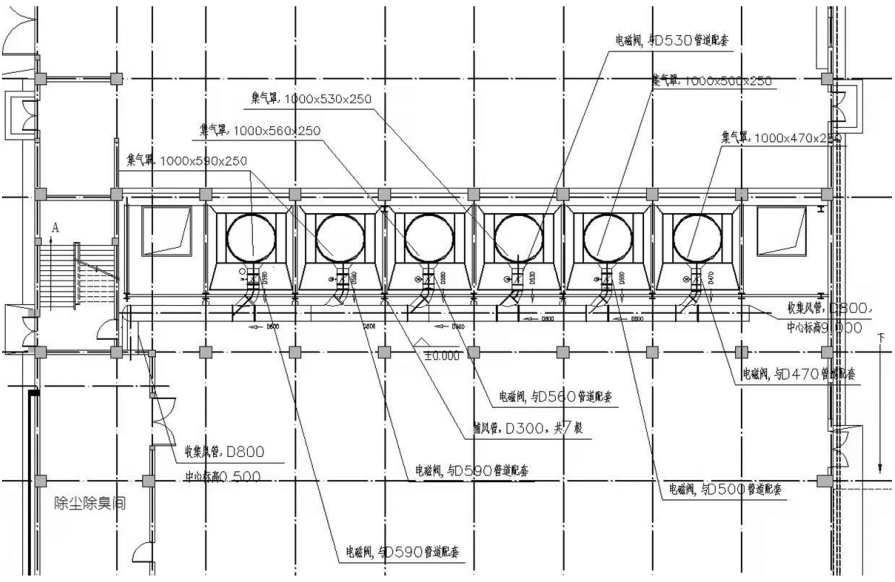
5、末端除臭收集系統
站內主要臭氣產生部位為垃圾壓縮作業區域,惡臭污染屬于無組織排放,故在作業泊位上部重新設置集氣罩,下部設置吸風口,收集風管鍍鋅材質,并配備風閥及電磁閥配合風口開關。改造后的泊位間因相互密閉,形成負壓式臭味收集環境,利用站內原有的除臭系統,將臭氣抽入末端化學洗滌工藝系統中,處理達標后的氣流從15m的高空排放。改造后末端除臭收集風管布置如下圖所示。

生活垃圾處理設備改造后末端除臭收集風管布置圖
2生活垃圾處理設備改造后效果
(1)垃圾轉運效率及可靠性提升。老舊壓實系統及鋼結構支撐系統經過改造后,日均處理垃圾量由改造前的485t提升到改造后的589t,處理效率提升21.4%,基本恢復到日處理能力600t/d的設計標準。垃圾處理效率顯著提高,設備設施運行的穩定性、安全性提升明顯,保證垃圾轉運工作的正常開展。
(2)轉運站內外及周邊環境質量提升。整個泊位空間配合快速卷簾門,可以做到完全封閉,通過全新設計的末端臭氣收集系統,泊位始終處于負壓狀態,使垃圾惡臭和粉塵不向外溢散。站內外環境質量能夠完全符合《惡臭污染物排放標準》(GB14554—93)要求,有效控制惡臭污染物對大氣的污染,保護和改善周邊環境,達到空氣環保的目的。
(3)節能效果提升。轉運站點設備技術改造后,壓實器采用低噪聲高效變頻電機,整機工作噪聲臆68dB,且在功率不變的情況下,能耗等級從原來的三級提升為一級,電機效率提升3.1%。經測算,垃圾轉運站壓實器的使用頻率,日平均使用時間6h,日節約用電8.4度,年節約用電3139度,在現如今國家推行拉閘限電政策的大環境下,達到節能降耗的效果。
(4)經濟效益明顯。技術改造站點的總費用僅為430余萬元,如對整個站點進行拆除重新建設,對比當時建設費用5069萬元,財政支出大大減少。
環境治理提高生活質量是人們永恒的話題。鄭州某大型垃圾轉運站采用對舊生活垃圾處理設備優化提升的低投入改造方案,快速提升了城市垃圾處理,解決了垃圾處理中壓實效率、設備防腐和除臭除塵等3個重要的技術問題,延長了生活垃圾處理設備的使用壽命,提高了城市垃圾周轉效率與質量,大大節約了財政支出,改善了周邊地區的空氣質量和居住環境,創造良好的環境效益、社會效益和經濟效益。
電話:400-118-6697 
地址:河南省商丘市示范區商都大道南段東側